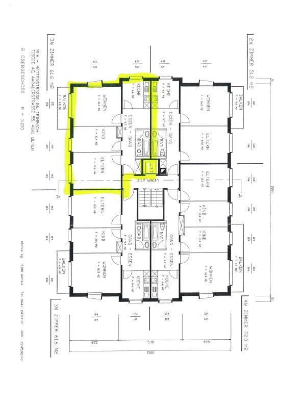
3.5-Zimmer-Eigentumswohnung zu verkaufen

Mattenstrasse 26
4632 Trimbach

  • Eckdaten
  • Zimmer: 3.5
  • Stockwerk: 2. OG
  • Wohnfläche: 61.6 m2
  • Baujahr: 1963

Grundrissplan

Standort anzeigen

Wir verkaufen an ruhiger und doch zentraler Lage in Trimbach eine 3.5-Zimmerwohnung im 2. Obergeschoss mit Blick ins Grüne:

- einfache Einbauküche
- Nasszelle mit Badewanne
- Parkettboden in den Zimmern
- Plattenboden im Korridor, in der Küche sowie in der Nasszelle
- sonniger Balkon
- eigenes Kellerabteil im UG
- gemeinsame Waschküche
- neue Liftanlage
- Garagenbox im Preis enthalten

Interessiert?
Dann melden Sie sich bei uns für einen Besichtigungstermin vor Ort. Sehr gerne stellen wir Ihnen auch die Verkaufsdokumentation zu. Wir freuen uns über Ihre Kontaktaufnahme.