Luxus neu definiert – Attikawohnung mit Grosszügigkeit und Weitblick!

Holdermattstrasse 5
4632 Trimbach

Nettomietzins CHF 3'250.00
Nebenkosten CHF 250.00
Bruttomietzins CHF 3'500.00

  • Eckdaten
  • Verfügbar: ab sofort
  • Zimmer: 4.5
  • Stockwerk: 3. OG
  • Wohnfläche: 161.2 m2
  • Baujahr: 2025
  • Ausstattung
  • Neubau
  • Lift
  • Aussicht
  • Terrasse
  • Parkplatz
  • Einstellplatz
  • Kinderfreundlich
  • Öffentlicher Verkehr (450m)
  • Einkaufsmöglichkeiten (1000m)
  • Kindergarten (190m)
  • Primarschule (750m)
  • Oberstufe (200m)
  • Autobahnanschluss (7700m)

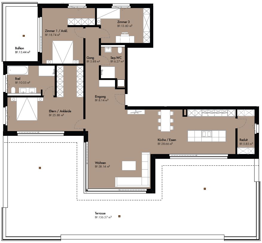
Grundrissplan

Standort anzeigen

Anfrageformular

Bewerbungsformular

In Trimbach erwartet Sie diese aussergewöhnliche Attikawohnung, die höchste Wohnansprüche mit stilvoller Architektur vereint. Grosszügige, lichtdurchflutete Räume, edle Materialien und ein durchdachtes Raumkonzept schaffen ein Ambiente von zeitloser Eleganz und moderner Wohnkultur.

Der weitläufige Wohn- und Essbereich mit bodentiefen Fensterfronten öffnet sich zur beeindruckenden Terrasse und verbindet Innen- und Aussenraum auf harmonische Weise. Hier geniessen Sie Sonne, Ruhe und eine unverbaute Weitsicht – ein privater Rückzugsort mit exklusivem Flair.

Die hochwertige Küche überzeugt mit erstklassiger Ausstattung und klarer Designsprache – ideal für genussvolle Abende und repräsentative Anlässe. Die stilvollen Schlafzimmer bieten Privatsphäre und Komfort, während die edel ausgestatteten Badezimmer mit erlesenen Materialien eine Wellness-Atmosphäre schaffen.

Hochwertiger Innenausbau im Eigentumsstandard

- Moderne, offene Küche mit hochwertiger Steinabdeckung und Küchenfronten mit Anti-Fingerprint-Beschichtung
- Hochwertige Küchengeräte von Electrolux: Geschirrspüler, Induktionsherd mit BORA X Pure Kochfeldabzugssystem, zwei Kombisteamer, Wärmeschublade sowie Weinkühlschrank
- Grosses, separates Reduit direkt neben der Küche mit Einbauschränken und Fenster
- Grosszügiges Schlafzimmer mit integrierter Nische für eine Ankleide
- Private Nasszelle im Schlafzimmer mit Dusche (Glastrennwand), Badewanne, hochwertigem Dusch-WC und integrierter Selbstentkalkung, Unterputz-Spiegelschrank, Unterbaumöbel und Fenster
- Separate Nasszelle mit Dusche und Glastrennwand
- Helle, hochwertige Bodenplatten sowie XL-Wandplatten in den Nasszellen
- Wohn-, Küchen- und Korridorbereich sowie Zimmer mit hochwertigem, geräuchertem Eichenparkett ausgestattet
- Grosszügiger Eingangsbereich mit Garderobe
- Einbaudeckenspots für optimale Beleuchtung und moderne Optik
- Bodensteckdose im Wohnbereich
- In der Decke integrierte Doppelvorhangschienen
- Traumhafte, grosszügige Terrasse mit drei Sonnenstoren, Steckdosen und Wasseranschluss
- zusätzlicher Balkon bei Zimmer
- Fussbodenheizung in der gesamten Wohnung mit individueller Regulierung pro Raum
- Elektrisch bedienbare Lamellenstoren in allen Räumen
- Eigenes Kellerabteil mit Waschmaschine/Tumbler
- Spielplatz zur Mitbenutzung
- Wärmepumpenheizung mit Erdsonde
- Enthärtungsanlage

In der Liegenschaft kann zudem ein Hobbyraum mit 30m2 für monatlich Fr. 215.00 dazu gemietet werden.

In der grosszügigen Einstellhalle mit gedeckter Einfahrt kann für monatlich Fr. 100.00 ein Platz für Ihr Fahrzeug gemietet werden. Ebenfalls stehen Aussenparkplätze für monatlich Fr. 60.00 zur Verfügung.

Trimbach ist dank seiner Lage ein idealer Wohnort. Die Gemeinde liegt am Ausgangspunkt der Passstrasse des Unteren Hauensteins, dem Juraübergang ins Baselland. Das verspricht Ihnen eine ländliche Idylle mit viel Natur und Ruhe, sowie eine Atmosphäre mit Alpensicht.

Durch seine unmittelbare Nachbarschaft mit Olten profitiert das Dorf von einer guten Anbindung an die öffentlichen Verkehrsmittel (Bus und Bahn). Diese ermöglichen ein problemloses Pendeln in die grösseren Städte (Zürich, Basel, Bern und Luzern).

Das Dorf verfügt über eine attraktive Infrastruktur mit diversen Einkaufsmöglichkeiten und Restaurants sowie mehrere Vereinsangebote aus den verschiedensten Bereichen.

Der Kindergarten, sowie die Primar- und Oberstufenschule befinden sich ebenfalls in Trimbach und sind in wenigen Gehminuten erreichbar